Hearthstone Manor
Discover community living in the serene peaceful setting of Hearthstone Manor. Situated just minutes from destination beaches and entertainment, this is the perfect location at an affordable price. Choose from a variety of living options that can be tailored to fit your style and budget, all while receiving hands on guidance during your home buying process from start to finish.
Features
Available Homes
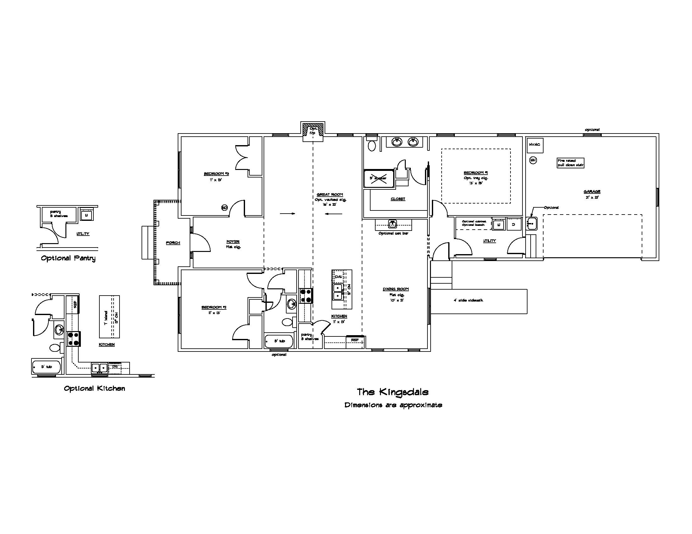
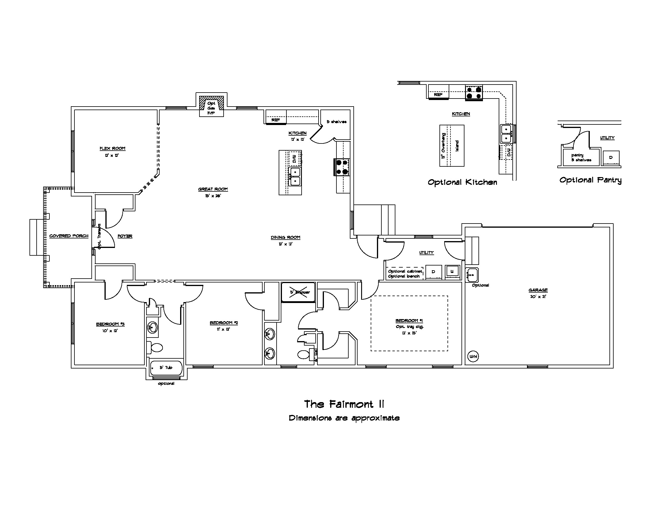
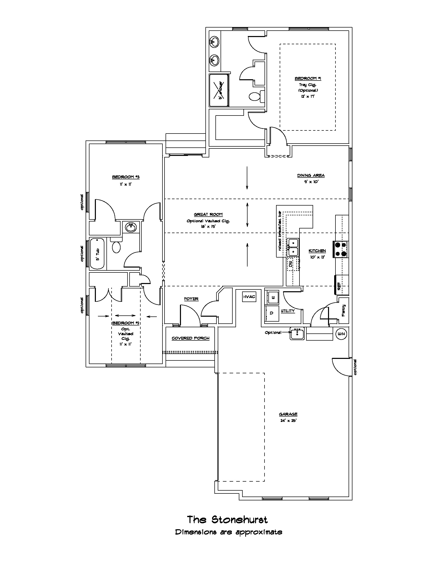
Floor Plans
Site Plan
Directions
SALES MANAGER
SALES CENTER HOURS
DIRECTIONS:
EQUAL HOUSING OPPORTUNITY We are pledged to the letter and spirit of U.S. policy for the achievement of equal housing opportunity throughout the Nation. We encourage and support an affirmative advertising and marketing program in which there are no barriers to obtaining housing because of race, color, religion, sex, handicap, familial status, or national origin.
PRICING & INCENTIVES: Country Life Homes reserves the right to change price, incentives or special offers without notice or obligation. This website content is not to be used as a basis of contract. Please see your on-site sales representative for the most current pricing, incentives and promotions in the community of your choice. The Sales Representative works for the Homebuilder, which means that he/she may assist the Buyer in purchasing the property, but his/her duty of loyalty is only to the Homebuilder.
ILLUSTRATIVE PURPOSE: Elevations, area maps and site plans shown herein are artistic concepts. Floorplans may vary by elevation. Room sizes are approximate. Due to our policy of constant improvement, Country Life Homes reserves the right to change plans, specifications or availability of selections without notice or obligation. This website content is not to be used as a basis of contract. Please see your on-site sales representative for the most current plans and specifications in the community of your choice.
PRIVACY: Country Life Homes understands that the privacy of the information provided to us is very important to you. All data gathered is used only in an effort to improve our products and services, and to provide more information on our products and services to you, by mail or electronically. This information will NOT be sold/distributed to any unaffiliated third parties without your prior consent.